0120-38-8127

受付時間:8:30〜17:30(土日祝日は除く)

セレステ町田の建物情報

お問い合わせ番号:021-49195
セレステ町田 外観1
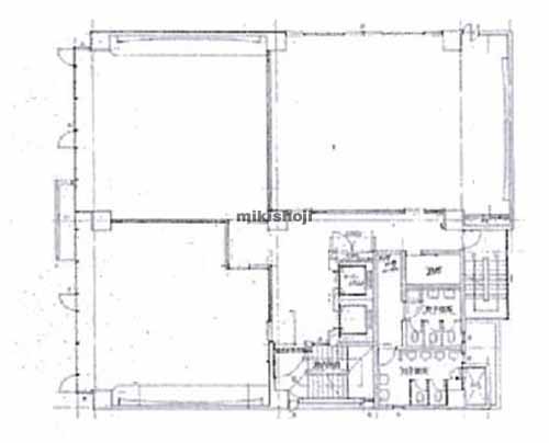
セレステ町田 平面1
セレステ町田 外観9
セレステ町田 平面1
所在地
町田市森野1-36-2
最寄駅
    町田駅(小田急小田原線) 東口 3分
    町田駅(JR) 北口 7分
竣工
1991年 3月
規模
地上4階建
延床面積
461坪
基準階面積
117坪
駐車場設備
あり 収容台数2台
エレベーター
あり 2基
空調設備
個別方式
基準天井高
2,800mm

セレステ町田の公開募集区画

階数 面積 賃料(共益費含) 預託金 入居可能日 一括請求リスト
3階 26.31坪(86.976㎡) 相談相談/坪 相談相談/坪 2026.04上旬
階数
3階
面積
26.31坪(86.976㎡)
賃料(共益費含)
相談 相談/坪
預託金
相談 相談/坪
入居可能日
2026.04上旬
一括請求リスト

※募集フロアや面積、賃貸条件、設備等は状況により変更になる場合があります。
※(案)のフロアは分割または一括貸の面積例です。
※賃貸条件の上段は月額、下段は坪単価を表示します。
※賃料、共益費は別途消費税の対象となります。
※掲載写真や図面(パース含む)が現況と異なる場合は現況を優先します。
※ご成約時は規定の仲介手数料を申し受けます。

セレステ町田の周辺地図

オフィス探しで
こんなお悩み
ありませんか?
  • 物件を探す時間が無い
  • なかなか良い物件が
    見つからない
  • プロ目線で物件を
    提案してほしい

約60,000棟の
登録物件の中から
オフィス仲介のプロが
理想のオフィス探しを
徹底サポートいたします。

チェックした物件を