0120-38-8127

受付時間:8:30〜17:30(土日祝日は除く)

博多八百治ビルの建物情報

お問い合わせ番号:010-05422
博多八百治ビル 外観1
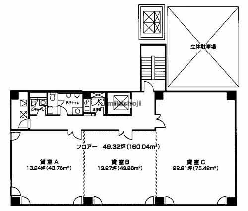
博多八百治ビル 平面1
博多八百治ビル 外観9
博多八百治ビル 平面1
所在地
福岡市博多区博多駅前4-3-3
最寄駅
    博多駅(福岡市営空港線・七隈線) 西24口 4分
    博多駅(JR) 博多口 8分
    櫛田神社前(福岡市営七隈線) 7番口 11分
竣工
1998年 3月
規模
地上9階建
延床面積
683坪
基準階面積
49坪
駐車場設備
あり 収容台数34台
エレベーター
あり 1基
空調設備
個別方式
基準天井高
2,500mm

博多八百治ビルの公開募集区画

階数 面積 賃料(共益費含) 預託金 入居可能日 一括請求リスト
6階 13.24坪(43.769㎡) 225,080円17,000円/坪 2,700,960円204,000円/坪 即日
階数
6階
面積
13.24坪(43.769㎡)
賃料(共益費含)
225,080円 17,000円/坪
預託金
2,700,960円 204,000円/坪
入居可能日
即日
一括請求リスト

※募集フロアや面積、賃貸条件、設備等は状況により変更になる場合があります。
※(案)のフロアは分割または一括貸の面積例です。
※賃貸条件の上段は月額、下段は坪単価を表示します。
※賃料、共益費は別途消費税の対象となります。
※掲載写真や図面(パース含む)が現況と異なる場合は現況を優先します。
※ご成約時は規定の仲介手数料を申し受けます。

博多八百治ビルの周辺地図

オフィス探しで
こんなお悩み
ありませんか?
  • 物件を探す時間が無い
  • なかなか良い物件が
    見つからない
  • プロ目線で物件を
    提案してほしい

約60,000棟の
登録物件の中から
オフィス仲介のプロが
理想のオフィス探しを
徹底サポートいたします。

チェックした物件を