0120-534-011

受付時間:8:30〜17:30(土日祝日は除く)

大樹生命大分ビルの建物情報

お問い合わせ番号:010-02729
大樹生命大分ビル 外観1
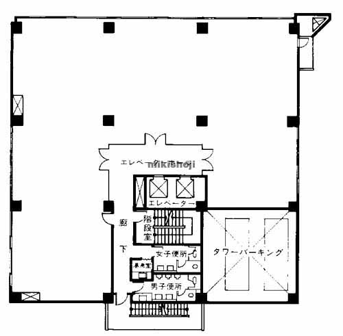
大樹生命大分ビル 平面1
大樹生命大分ビル 外観9
大樹生命大分ビル 平面1
所在地
大分市中央町2-9-24
最寄駅
    大分駅(JR) 府内中央口〔北口〕 10分
竣工
1987年 3月
規模
地上9階建
延床面積
1,337坪
基準階面積
133坪
駐車場設備
あり 収容台数30台
エレベーター
あり 2基
空調設備
個別方式
基準天井高
2,500mm

大樹生命大分ビルの公開募集区画

階数 面積 賃料(共益費含) 預託金 入居可能日 一括請求リスト
1階 25.63坪(84.728㎡) 相談相談/坪 相談相談/坪 2026.09上旬
7階 25.33坪(83.736㎡) 相談相談/坪 相談相談/坪 即日
階数
1階
面積
25.63坪(84.728㎡)
賃料(共益費含)
相談 相談/坪
預託金
相談 相談/坪
入居可能日
2026.09上旬
一括請求リスト
階数
7階
面積
25.33坪(83.736㎡)
賃料(共益費含)
相談 相談/坪
預託金
相談 相談/坪
入居可能日
即日
一括請求リスト

※募集フロアや面積、賃貸条件、設備等は状況により変更になる場合があります。
※(案)のフロアは分割または一括貸の面積例です。
※賃貸条件の上段は月額、下段は坪単価を表示します。
※賃料、共益費は別途消費税の対象となります。
※掲載写真や図面(パース含む)が現況と異なる場合は現況を優先します。
※ご成約時は規定の仲介手数料を申し受けます。

大樹生命大分ビルの周辺地図

オフィス探しで
こんなお悩み
ありませんか?
  • 物件を探す時間が無い
  • なかなか良い物件が
    見つからない
  • プロ目線で物件を
    提案してほしい

約60,000棟の
登録物件の中から
オフィス仲介のプロが
理想のオフィス探しを
徹底サポートいたします。

チェックした物件を