0120-534-011

受付時間:8:30〜17:30(土日祝日は除く)

大分中央通りビルの建物情報

お問い合わせ番号:010-02703
大分中央通りビル 外観1
大分中央通りビル 外観2
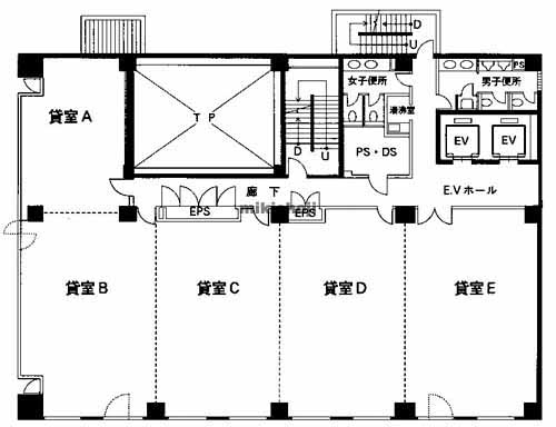
大分中央通りビル 平面1
大分中央通りビル エントランス1
大分中央通りビル 外観9
大分中央通りビル 外観2
大分中央通りビル 平面2
大分中央通りビル エントランス1
所在地
大分市都町1-2-1
最寄駅
    大分駅(JR) 府内中央口〔北口〕 11分
竣工
1993年 2月
規模
地上8階建
延床面積
1,180坪
基準階面積
94坪
駐車場設備
あり 収容台数36台
エレベーター
あり 2基
空調設備
個別方式
基準天井高
2,600mm

大分中央通りビルの公開募集区画

階数 面積 賃料(共益費含) 預託金 入居可能日 一括請求リスト
5階 33.43坪(110.513㎡) 相談相談/坪 相談相談/坪 即日
5階 21.87坪(72.298㎡) 相談相談/坪 相談相談/坪 2026.10上旬
階数
5階
面積
33.43坪(110.513㎡)
賃料(共益費含)
相談 相談/坪
預託金
相談 相談/坪
入居可能日
即日
一括請求リスト
階数
5階
面積
21.87坪(72.298㎡)
賃料(共益費含)
相談 相談/坪
預託金
相談 相談/坪
入居可能日
2026.10上旬
一括請求リスト

※募集フロアや面積、賃貸条件、設備等は状況により変更になる場合があります。
※(案)のフロアは分割または一括貸の面積例です。
※賃貸条件の上段は月額、下段は坪単価を表示します。
※賃料、共益費は別途消費税の対象となります。
※掲載写真や図面(パース含む)が現況と異なる場合は現況を優先します。
※ご成約時は規定の仲介手数料を申し受けます。

大分中央通りビルの周辺地図

オフィス探しで
こんなお悩み
ありませんか?
  • 物件を探す時間が無い
  • なかなか良い物件が
    見つからない
  • プロ目線で物件を
    提案してほしい

約60,000棟の
登録物件の中から
オフィス仲介のプロが
理想のオフィス探しを
徹底サポートいたします。

チェックした物件を