0120-38-8127

受付時間:8:30〜17:30(土日祝日は除く)

大名偕成ビルの建物情報

お問い合わせ番号:010-01351
大名偕成ビル 外観1
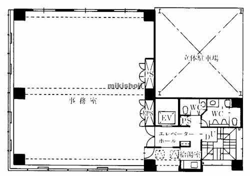
大名偕成ビル 平面1
大名偕成ビル 外観9
大名偕成ビル 平面1
所在地
福岡市中央区大名2-11-13
最寄駅
    赤坂駅(福岡市営空港線) 3番口 2分
    天神駅(福岡市営空港線) 1番口 9分
    西鉄福岡[天神]駅(西鉄天神大牟田線) 北口 12分
竣工
1993年 3月
規模
地上9階/地下1階建
延床面積
510坪
基準階面積
46坪
駐車場設備
あり 収容台数32台
エレベーター
あり 1基
空調設備
個別方式
基準天井高
2,600mm

大名偕成ビルの公開募集区画

階数 面積 賃料(共益費含) 預託金 入居可能日 一括請求リスト
4階 20.67坪(68.331㎡) 289,380円14,000円/坪 2,604,420円126,000円/坪 即日
階数
4階
面積
20.67坪(68.331㎡)
賃料(共益費含)
289,380円 14,000円/坪
預託金
2,604,420円 126,000円/坪
入居可能日
即日
一括請求リスト

※募集フロアや面積、賃貸条件、設備等は状況により変更になる場合があります。
※(案)のフロアは分割または一括貸の面積例です。
※賃貸条件の上段は月額、下段は坪単価を表示します。
※賃料、共益費は別途消費税の対象となります。
※掲載写真や図面(パース含む)が現況と異なる場合は現況を優先します。
※ご成約時は規定の仲介手数料を申し受けます。

大名偕成ビルの周辺地図

オフィス探しで
こんなお悩み
ありませんか?
  • 物件を探す時間が無い
  • なかなか良い物件が
    見つからない
  • プロ目線で物件を
    提案してほしい

約60,000棟の
登録物件の中から
オフィス仲介のプロが
理想のオフィス探しを
徹底サポートいたします。

チェックした物件を