0120-38-8127

受付時間:8:30〜17:30(土日祝日は除く)

タイセイビルディングの建物情報

お問い合わせ番号:010-00350
タイセイビルディング 外観1
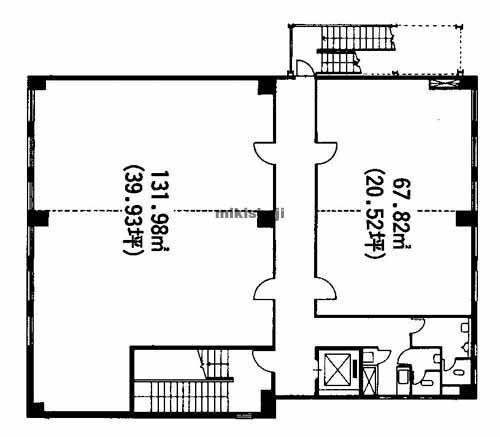
タイセイビルディング 平面1
タイセイビルディング 外観9
タイセイビルディング 平面1
所在地
福岡市博多区博多駅前2-4-12
最寄駅
    博多駅(福岡市営空港線・七隈線) 西12b口 3分
    博多駅(JR) 博多口 5分
    櫛田神社前(福岡市営七隈線) 6番口 6分
竣工
1980年 8月(リニューアル:2000年)
規模
地上7階建
延床面積
497坪
基準階面積
69坪
駐車場設備
あり 収容台数6台
エレベーター
あり 1基
空調設備
個別方式
基準天井高
2,400mm

タイセイビルディングの公開募集区画

階数 面積 賃料(共益費含) 預託金 入居可能日 一括請求リスト
3階 17.39坪(57.488㎡) 相談相談/坪 相談相談/坪 即日
階数
3階
面積
17.39坪(57.488㎡)
賃料(共益費含)
相談 相談/坪
預託金
相談 相談/坪
入居可能日
即日
一括請求リスト

※募集フロアや面積、賃貸条件、設備等は状況により変更になる場合があります。
※(案)のフロアは分割または一括貸の面積例です。
※賃貸条件の上段は月額、下段は坪単価を表示します。
※賃料、共益費は別途消費税の対象となります。
※掲載写真や図面(パース含む)が現況と異なる場合は現況を優先します。
※ご成約時は規定の仲介手数料を申し受けます。

タイセイビルディングの周辺地図

オフィス探しで
こんなお悩み
ありませんか?
  • 物件を探す時間が無い
  • なかなか良い物件が
    見つからない
  • プロ目線で物件を
    提案してほしい

約60,000棟の
登録物件の中から
オフィス仲介のプロが
理想のオフィス探しを
徹底サポートいたします。

チェックした物件を