0120-38-8127

受付時間:8:30〜17:30(土日祝日は除く)

ロイヤルオークビルの建物情報

お問い合わせ番号:008-11516
ロイヤルオークビル 外観1
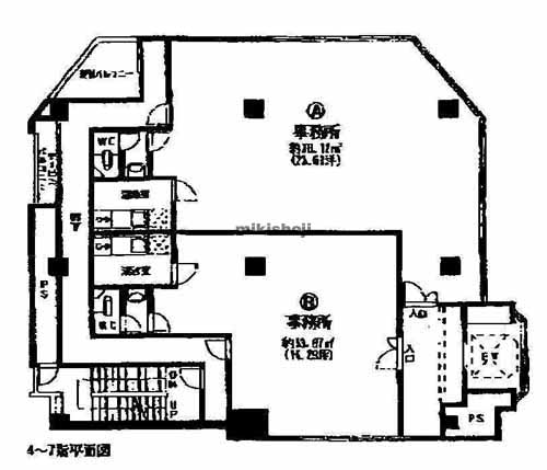
ロイヤルオークビル 平面1
ロイヤルオークビル 外観9
ロイヤルオークビル 平面1
所在地
名古屋市北区会所町250-1
最寄駅
    比良駅(東海交通事業城北線) 19分
竣工
1984年10月(リニューアル:2019年)
規模
地上7階建
延床面積
0坪
基準階面積
43坪
駐車場設備
あり 収容台数13台
エレベーター
あり 1基
空調設備
個別方式

ロイヤルオークビルの公開募集区画

階数 面積 賃料(共益費含) 預託金 入居可能日 一括請求リスト
4階 16.64坪(55.009㎡) 92,001円5,530円/坪 250,911円15,079円/坪 即日
階数
4階
面積
16.64坪(55.009㎡)
賃料(共益費含)
92,001円 5,530円/坪
預託金
250,911円 15,079円/坪
入居可能日
即日
一括請求リスト

※募集フロアや面積、賃貸条件、設備等は状況により変更になる場合があります。
※(案)のフロアは分割または一括貸の面積例です。
※賃貸条件の上段は月額、下段は坪単価を表示します。
※賃料、共益費は別途消費税の対象となります。
※掲載写真や図面(パース含む)が現況と異なる場合は現況を優先します。
※ご成約時は規定の仲介手数料を申し受けます。

ロイヤルオークビルの周辺地図

ロイヤルオークビルのビル概要

ロイヤルオークビルは、名古屋市北区会所町に位置する地上7階建ての賃貸オフィスです。1984年10月竣工の堅実な構造を持ち、国道41号線や名古屋高速へのアクセスが良好なロードサイドエリアに立地しています。基準階面積43坪の構成で、車移動を主体とする企業の営業拠点や、地域に根ざした事務所運営に寄与します。静かな環境の中でコストを抑えた拠点構築を検討される企業に最適な、安定した管理体制のビルです。

オフィス探しで
こんなお悩み
ありませんか?
  • 物件を探す時間が無い
  • なかなか良い物件が
    見つからない
  • プロ目線で物件を
    提案してほしい

約60,000棟の
登録物件の中から
オフィス仲介のプロが
理想のオフィス探しを
徹底サポートいたします。

チェックした物件を