ie桜通伏見ビルディングの建物情報
お問い合わせ番号:008-10767
- 所在地
- 名古屋市中区丸の内2-17-30
- 最寄駅
-
丸の内駅(名古屋市営桜通線・鶴舞線) 2番口 1分伏見駅(名古屋市営東山線・鶴舞線) 1番口 7分
- 竣工
- 1999年 9月
- 規模
- 地上9階建
- 延床面積
- 457坪
- 基準階面積
- 43坪
- 駐車場設備
- あり
- エレベーター
- あり 1基
- 空調設備
- 個別方式
ie桜通伏見ビルディングの公開募集区画
階数 | 面積 | 賃料(共益費含) | 預託金 | 入居可能日 | 一括請求リスト | |
---|---|---|---|---|---|---|
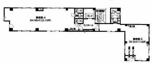
3階 | 25.71坪(84.992㎡) | 相談相談/坪 | 相談相談/坪 | 即日 | ||
3階 | 17.03坪(56.298㎡) | 相談相談/坪 | 相談相談/坪 | 即日 | ||
※募集フロアや面積、賃貸条件、設備等は状況により変更になる場合があります。
※(案)のフロアは分割または一括貸の面積例です。
※賃貸条件の上段は月額、下段は坪単価を表示します。
※賃料、共益費は別途消費税の対象となります。
※掲載写真や図面(パース含む)が現況と異なる場合は現況を優先します。
※ご成約時は規定の仲介手数料を申し受けます。
ie桜通伏見ビルディングの周辺地図

オフィス探しで
こんなお悩み
ありませんか?
-
物件を探す時間が無い
-
なかなか良い物件が 見つからない
-
プロ目線で物件を 提案してほしい
約60,000棟の
オフィス仲介のプロが 理想のオフィス探しを
徹底サポートいたします。
オフィス探しを依頼する
チェックした物件を