0120-534-011

受付時間:8:30〜17:30(土日祝日は除く)

代官町ビルディング(旧:アーク代官町ビルディング)の建物情報

お問い合わせ番号:008-00561
代官町ビルディング(旧:アーク代官町ビルディング) 外観1
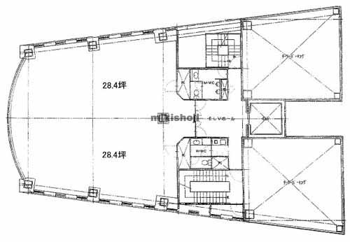
代官町ビルディング(旧:アーク代官町ビルディング) 平面1
代官町ビルディング(旧:アーク代官町ビルディング) 外観9
代官町ビルディング(旧:アーク代官町ビルディング) 平面1
所在地
名古屋市東区代官町16-17
最寄駅
    高岳駅(名古屋市営桜通線) 2番口 10分
    新栄町駅(名古屋市営東山線) 2番口 11分
    車道駅(名古屋市営桜通線) 1番口 13分
竣工
1989年 4月(リニューアル:2014年 9月)
規模
地上12階建
延床面積
1,278坪
基準階面積
57坪
駐車場設備
あり 収容台数64台
エレベーター
あり 1基
空調設備
個別方式
基準天井高
2,500mm

代官町ビルディング(旧:アーク代官町ビルディング)の公開募集区画

階数 面積 賃料(共益費含) 預託金 入居可能日 一括請求リスト
3階 111.2坪(367.605㎡) 889,600円8,000円/坪 8,896,000円80,000円/坪 入居日相談
階数
3階
面積
111.2坪(367.605㎡)
賃料(共益費含)
889,600円 8,000円/坪
預託金
8,896,000円 80,000円/坪
入居可能日
入居日相談
一括請求リスト

※募集フロアや面積、賃貸条件、設備等は状況により変更になる場合があります。
※(案)のフロアは分割または一括貸の面積例です。
※賃貸条件の上段は月額、下段は坪単価を表示します。
※賃料、共益費は別途消費税の対象となります。
※掲載写真や図面(パース含む)が現況と異なる場合は現況を優先します。
※ご成約時は規定の仲介手数料を申し受けます。

代官町ビルディング(旧:アーク代官町ビルディング)の周辺地図

代官町ビルディング(旧:アーク代官町ビルディング)のビル概要

代官町ビルディング(旧:アーク代官町ビルディング)は、名古屋市東区代官町に所在する、1989年4月竣工の地上12階・地下1階建て大規模オフィスビルです。高岳駅や新栄町駅から徒歩圏内にあり、延床面積1,278坪、基準階面積57坪の構成です。事務所移転に際して、12階建ての視認性の高さと、主要幹線道路に近い機動的な立地仕様は大きなメリットとなります。周辺の静穏な環境を活かしつつ、機能的に管理された空間が企業の長期的な活動を支援します。

オフィス探しで
こんなお悩み
ありませんか?
  • 物件を探す時間が無い
  • なかなか良い物件が
    見つからない
  • プロ目線で物件を
    提案してほしい

約60,000棟の
登録物件の中から
オフィス仲介のプロが
理想のオフィス探しを
徹底サポートいたします。

チェックした物件を