0120-534-011

受付時間:8:30〜17:30(土日祝日は除く)

宇部センタービルの建物情報

お問い合わせ番号:010-06007
宇部センタービル 外観1
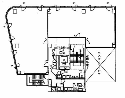
宇部センタービル 平面1
宇部センタービル 外観9
宇部センタービル 平面1
所在地
山口県宇部市中央町1-7-23
最寄駅
    宇部新川駅(JR) 3分
    琴芝駅(JR) 15分
竣工
1989年 9月
規模
地上6階建
延床面積
503坪
基準階面積
61坪
駐車場設備
あり 収容台数25台
エレベーター
あり 1基
空調設備
個別方式
基準天井高
2,600mm

宇部センタービルの公開募集区画

階数 面積 賃料(共益費含) 預託金 入居可能日 一括請求リスト
3階 12.06坪(39.868㎡) 96,480円8,000円/坪 385,920円32,000円/坪 入居日相談
3階 29.96坪(99.042㎡) 239,680円8,000円/坪 958,720円32,000円/坪 即日
4階 12.06坪(39.868㎡) 96,480円8,000円/坪 385,920円32,000円/坪 即日
4階 15.56坪(51.438㎡) 124,480円8,000円/坪 497,920円32,000円/坪 即日
階数
3階
面積
12.06坪(39.868㎡)
賃料(共益費含)
96,480円 8,000円/坪
預託金
385,920円 32,000円/坪
入居可能日
入居日相談
一括請求リスト
階数
3階
面積
29.96坪(99.042㎡)
賃料(共益費含)
239,680円 8,000円/坪
預託金
958,720円 32,000円/坪
入居可能日
即日
一括請求リスト
階数
4階
面積
12.06坪(39.868㎡)
賃料(共益費含)
96,480円 8,000円/坪
預託金
385,920円 32,000円/坪
入居可能日
即日
一括請求リスト
階数
4階
面積
15.56坪(51.438㎡)
賃料(共益費含)
124,480円 8,000円/坪
預託金
497,920円 32,000円/坪
入居可能日
即日
一括請求リスト

※募集フロアや面積、賃貸条件、設備等は状況により変更になる場合があります。
※(案)のフロアは分割または一括貸の面積例です。
※賃貸条件の上段は月額、下段は坪単価を表示します。
※賃料、共益費は別途消費税の対象となります。
※掲載写真や図面(パース含む)が現況と異なる場合は現況を優先します。
※ご成約時は規定の仲介手数料を申し受けます。

宇部センタービルの周辺地図

オフィス探しで
こんなお悩み
ありませんか?
  • 物件を探す時間が無い
  • なかなか良い物件が
    見つからない
  • プロ目線で物件を
    提案してほしい

約60,000棟の
登録物件の中から
オフィス仲介のプロが
理想のオフィス探しを
徹底サポートいたします。

チェックした物件を