0120-38-8127

受付時間:8:30〜17:30(土日祝日は除く)

佐賀中央通りビルの建物情報

お問い合わせ番号:010-02818
佐賀中央通りビル 外観1
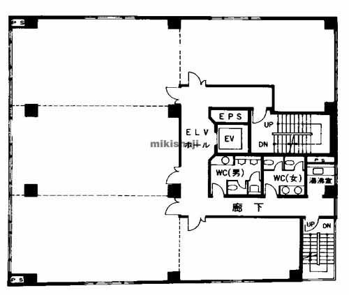
佐賀中央通りビル 平面1
佐賀中央通りビル 外観9
佐賀中央通りビル 平面1
所在地
佐賀市唐人2-5-8
最寄駅
    佐賀駅(JR) 南口 9分
竣工
1989年 8月
規模
地上6階/地下1階建
延床面積
714坪
基準階面積
91坪
駐車場設備
あり
エレベーター
あり 1基
空調設備
個別方式
基準天井高
2,500mm

佐賀中央通りビルの公開募集区画

階数 面積 賃料(共益費含) 預託金 入居可能日 一括請求リスト
2階 21.03坪(69.521㎡) 147,210円7,000円/坪 1,051,500円50,000円/坪 即日
3階 20.38坪(67.372㎡) 142,660円7,000円/坪 1,019,000円50,000円/坪 即日
3階 15.07坪(49.818㎡) 105,490円7,000円/坪 753,500円50,000円/坪 即日
階数
2階
面積
21.03坪(69.521㎡)
賃料(共益費含)
147,210円 7,000円/坪
預託金
1,051,500円 50,000円/坪
入居可能日
即日
一括請求リスト
階数
3階
面積
20.38坪(67.372㎡)
賃料(共益費含)
142,660円 7,000円/坪
預託金
1,019,000円 50,000円/坪
入居可能日
即日
一括請求リスト
階数
3階
面積
15.07坪(49.818㎡)
賃料(共益費含)
105,490円 7,000円/坪
預託金
753,500円 50,000円/坪
入居可能日
即日
一括請求リスト

※募集フロアや面積、賃貸条件、設備等は状況により変更になる場合があります。
※(案)のフロアは分割または一括貸の面積例です。
※賃貸条件の上段は月額、下段は坪単価を表示します。
※賃料、共益費は別途消費税の対象となります。
※掲載写真や図面(パース含む)が現況と異なる場合は現況を優先します。
※ご成約時は規定の仲介手数料を申し受けます。

佐賀中央通りビルの周辺地図

オフィス探しで
こんなお悩み
ありませんか?
  • 物件を探す時間が無い
  • なかなか良い物件が
    見つからない
  • プロ目線で物件を
    提案してほしい

約60,000棟の
登録物件の中から
オフィス仲介のプロが
理想のオフィス探しを
徹底サポートいたします。

チェックした物件を