0120-534-011

受付時間:8:30〜17:30(土日祝日は除く)

近鉄新難波ビルの建物情報

お問い合わせ番号:009-08580
近鉄新難波ビル 外観1
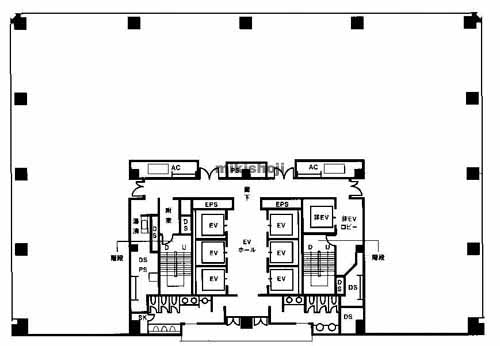
近鉄新難波ビル 平面1
近鉄新難波ビル エントランス1
近鉄新難波ビル エントランス2
近鉄新難波ビル エントランス3
近鉄新難波ビル エントランス4
近鉄新難波ビル エントランス5
近鉄新難波ビル エレベーターホール1
近鉄新難波ビル エレベーターホール2
近鉄新難波ビル 水回り1
近鉄新難波ビル 水回り2
近鉄新難波ビル 水回り3
近鉄新難波ビル 外観9
近鉄新難波ビル 平面1
近鉄新難波ビル エントランス1
近鉄新難波ビル エントランス2
近鉄新難波ビル エントランス3
近鉄新難波ビル エントランス4
近鉄新難波ビル エントランス5
近鉄新難波ビル エレベーターホール1
近鉄新難波ビル エレベーターホール2
近鉄新難波ビル 水回り1
近鉄新難波ビル 水回り2
近鉄新難波ビル 水回り3
所在地
大阪市浪速区湊町1-4-38
最寄駅
    JR難波駅(JR) 北口 3分
    なんば駅(地下鉄御堂筋線・四つ橋線・千日前線) 30番口 5分
    大阪難波駅(近鉄難波線/阪神なんば線) 27番口 5分
竣工
2001年 3月
規模
地上20階/地下1階建
延床面積
7,594坪
基準階面積
244坪
駐車場設備
あり 収容台数70台
エレベーター
あり 7基
空調設備
個別方式
基準天井高
2,700mm
基準床荷重
300kg/㎡(OA)

近鉄新難波ビルの公開募集区画

階数 面積 賃料(共益費含) 預託金 入居可能日 一括請求リスト
20階 80.62坪(266.514㎡) 未定未定/坪 未定未定/坪 2026.07上旬
階数
20階
面積
80.62坪(266.514㎡)
賃料(共益費含)
未定 未定/坪
預託金
未定 未定/坪
入居可能日
2026.07上旬
一括請求リスト

※募集フロアや面積、賃貸条件、設備等は状況により変更になる場合があります。
※(案)のフロアは分割または一括貸の面積例です。
※賃貸条件の上段は月額、下段は坪単価を表示します。
※賃料、共益費は別途消費税の対象となります。
※掲載写真や図面(パース含む)が現況と異なる場合は現況を優先します。
※ご成約時は規定の仲介手数料を申し受けます。

近鉄新難波ビルの周辺地図

近鉄新難波ビルのビル概要

近鉄新難波ビルは、大阪市浪速区湊町1-4-38に位置する、2001年3月竣工の地上20階、地下1階建のオフィスビルです。JR難波駅から徒歩3分、近鉄難波線・阪神なんば線大阪難波駅から徒歩5分、地下鉄御堂筋線・四つ橋・千日前線なんば駅から徒歩5分です。オフィスは基準階面積約244坪の無柱空間です。天井高2,700mm、システム天井を採用しています。OAフロアは75mm、コンセント容量は50VA/㎡です。防災計画は高耐震・高耐火を可能にしたCFT構造と耐震装置を採用し、建物の揺れを小さくして被害を低減します。空調システムは個別空調、照明はHf蛍光灯を採用し700Lxの照度を確保し、不在消灯を実現しました。セキュリティは非接触型ICカードで行うキーレスシステムによる24時間対応の入室管理です。カードからの退出情報によりエレベーター・空調・照明を自動コントロールにより高度なセキュリティと省エネルギーを図っています。

オフィス探しで
こんなお悩み
ありませんか?
  • 物件を探す時間が無い
  • なかなか良い物件が
    見つからない
  • プロ目線で物件を
    提案してほしい

約60,000棟の
登録物件の中から
オフィス仲介のプロが
理想のオフィス探しを
徹底サポートいたします。

チェックした物件を