0120-38-8127

受付時間:8:30〜17:30(土日祝日は除く)

神戸旧居留地平和ビルの建物情報

お問い合わせ番号:009-08027
神戸旧居留地平和ビル 外観1
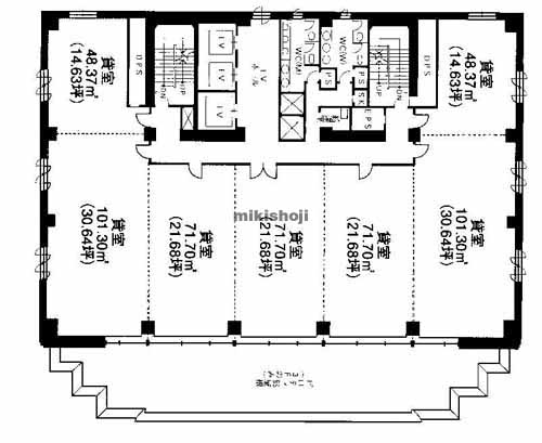
神戸旧居留地平和ビル 平面1
神戸旧居留地平和ビル 外観9
神戸旧居留地平和ビル 平面1
所在地
神戸市中央区播磨町49
最寄駅
    旧居留地・大丸前駅(神戸市営海岸線) 3番口 3分
    元町駅(阪神本線/神戸高速鉄道東西線) 東出口 6分
    元町駅(JR) 東口 6分
竣工
1998年 2月
規模
地上9階/地下2階建
延床面積
2,412坪
基準階面積
156坪
駐車場設備
あり 収容台数42台
エレベーター
あり 3基
空調設備
個別方式
基準天井高
2,700mm
基準床荷重
300kg/㎡

神戸旧居留地平和ビルの公開募集区画

階数 面積 賃料(共益費含) 預託金 入居可能日 一括請求リスト
4階 21.68坪(71.67㎡) 未定未定/坪 未定未定/坪 2026.04上旬
階数
4階
面積
21.68坪(71.67㎡)
賃料(共益費含)
未定 未定/坪
預託金
未定 未定/坪
入居可能日
2026.04上旬
一括請求リスト

※募集フロアや面積、賃貸条件、設備等は状況により変更になる場合があります。
※(案)のフロアは分割または一括貸の面積例です。
※賃貸条件の上段は月額、下段は坪単価を表示します。
※賃料、共益費は別途消費税の対象となります。
※掲載写真や図面(パース含む)が現況と異なる場合は現況を優先します。
※ご成約時は規定の仲介手数料を申し受けます。

神戸旧居留地平和ビルの周辺地図

オフィス探しで
こんなお悩み
ありませんか?
  • 物件を探す時間が無い
  • なかなか良い物件が
    見つからない
  • プロ目線で物件を
    提案してほしい

約60,000棟の
登録物件の中から
オフィス仲介のプロが
理想のオフィス探しを
徹底サポートいたします。

チェックした物件を