0120-534-011

受付時間:8:30〜17:30(土日祝日は除く)

ソーラービルの建物情報

お問い合わせ番号:009-05716
ソーラービル 外観1
ソーラービル 平面1
ソーラービル 外観9
ソーラービル 平面1
所在地
神戸市中央区布引町2-1-7
最寄駅
    三宮駅(神戸市営西神・山手線) 東出口2 6分
    三ノ宮駅(JR) 中央口 7分
    神戸三宮駅(阪急神戸本線/神戸高速鉄道東西線) 東口 8分
竣工
1990年 3月
規模
地上8階/地下1階建
延床面積
559坪
基準階面積
51坪
駐車場設備
あり 収容台数16台
エレベーター
あり 1基
空調設備
個別方式

ソーラービルの公開募集区画

階数 面積 賃料(共益費含) 預託金 入居可能日 一括請求リスト
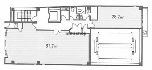
4階 24.7坪(81.653㎡) 271,700円11,000円/坪 1,837,680円74,400円/坪 即日
階数
4階
面積
24.7坪(81.653㎡)
賃料(共益費含)
271,700円 11,000円/坪
預託金
1,837,680円 74,400円/坪
入居可能日
即日
一括請求リスト

※募集フロアや面積、賃貸条件、設備等は状況により変更になる場合があります。
※(案)のフロアは分割または一括貸の面積例です。
※賃貸条件の上段は月額、下段は坪単価を表示します。
※賃料、共益費は別途消費税の対象となります。
※掲載写真や図面(パース含む)が現況と異なる場合は現況を優先します。
※ご成約時は規定の仲介手数料を申し受けます。

ソーラービルの周辺地図

オフィス探しで
こんなお悩み
ありませんか?
  • 物件を探す時間が無い
  • なかなか良い物件が
    見つからない
  • プロ目線で物件を
    提案してほしい

約60,000棟の
登録物件の中から
オフィス仲介のプロが
理想のオフィス探しを
徹底サポートいたします。

チェックした物件を