0120-534-011

受付時間:8:30〜17:30(土日祝日は除く)

渕上ビルの建物情報

お問い合わせ番号:009-07057
渕上ビル 外観1
渕上ビル 平面1
渕上ビル 外観9
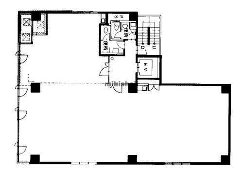
渕上ビル 平面1
所在地
大阪市中央区南船場4-8-6
最寄駅
    心斎橋駅(地下鉄御堂筋線・長堀鶴見緑地線) 3番口 4分
    四ツ橋駅(地下鉄四つ橋線) 1-A口 6分
    大阪難波駅(近鉄難波線/阪神なんば線) 25番口 15分
竣工
1993年 9月
規模
地上9階/地下1階建
延床面積
666坪
基準階面積
55坪
駐車場設備
あり 収容台数32台
エレベーター
あり 1基
空調設備
個別方式
基準天井高
2,500mm

渕上ビルの公開募集区画

階数 面積 賃料(共益費含) 預託金 入居可能日 一括請求リスト
7階 46坪(152.067㎡) 667,000円14,500円/坪 6,072,000円132,000円/坪 即日
階数
7階
面積
46坪(152.067㎡)
賃料(共益費含)
667,000円 14,500円/坪
預託金
6,072,000円 132,000円/坪
入居可能日
即日
一括請求リスト

※募集フロアや面積、賃貸条件、設備等は状況により変更になる場合があります。
※(案)のフロアは分割または一括貸の面積例です。
※賃貸条件の上段は月額、下段は坪単価を表示します。
※賃料、共益費は別途消費税の対象となります。
※掲載写真や図面(パース含む)が現況と異なる場合は現況を優先します。
※ご成約時は規定の仲介手数料を申し受けます。

渕上ビルの周辺地図

オフィス探しで
こんなお悩み
ありませんか?
  • 物件を探す時間が無い
  • なかなか良い物件が
    見つからない
  • プロ目線で物件を
    提案してほしい

約60,000棟の
登録物件の中から
オフィス仲介のプロが
理想のオフィス探しを
徹底サポートいたします。

チェックした物件を