0120-534-011

受付時間:8:30〜17:30(土日祝日は除く)

米子ワシントンビルの建物情報

お問い合わせ番号:009-06228
米子ワシントンビル 外観1
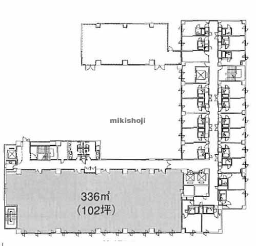
米子ワシントンビル 平面1
米子ワシントンビル 外観9
米子ワシントンビル 平面1
所在地
鳥取県米子市明治町125
最寄駅
    米子駅(JR) 2分
竣工
1994年
規模
地上9階建
延床面積
3,237坪
基準階面積
102坪
駐車場設備
あり 収容台数30台
エレベーター
あり 1基
空調設備
個別方式
基準天井高
2,500mm

米子ワシントンビルの公開募集区画

階数 面積 賃料(共益費含) 預託金 入居可能日 一括請求リスト
1階 137.17坪(453.457㎡) 1,371,700円10,000円/坪 8,230,200円60,000円/坪 2026.07上旬
1階 26.94坪(89.058㎡) 215,520円8,000円/坪 1,293,120円48,000円/坪 2026.09上旬
3階 20.03坪(66.215㎡) 180,270円9,000円/坪 1,081,620円54,000円/坪 即日
4階 19.04坪(62.942㎡) 171,360円9,000円/坪 1,028,160円54,000円/坪 2026.11上旬
階数
1階
面積
137.17坪(453.457㎡)
賃料(共益費含)
1,371,700円 10,000円/坪
預託金
8,230,200円 60,000円/坪
入居可能日
2026.07上旬
一括請求リスト
階数
1階
面積
26.94坪(89.058㎡)
賃料(共益費含)
215,520円 8,000円/坪
預託金
1,293,120円 48,000円/坪
入居可能日
2026.09上旬
一括請求リスト
階数
3階
面積
20.03坪(66.215㎡)
賃料(共益費含)
180,270円 9,000円/坪
預託金
1,081,620円 54,000円/坪
入居可能日
即日
一括請求リスト
階数
4階
面積
19.04坪(62.942㎡)
賃料(共益費含)
171,360円 9,000円/坪
預託金
1,028,160円 54,000円/坪
入居可能日
2026.11上旬
一括請求リスト

※募集フロアや面積、賃貸条件、設備等は状況により変更になる場合があります。
※(案)のフロアは分割または一括貸の面積例です。
※賃貸条件の上段は月額、下段は坪単価を表示します。
※賃料、共益費は別途消費税の対象となります。
※掲載写真や図面(パース含む)が現況と異なる場合は現況を優先します。
※ご成約時は規定の仲介手数料を申し受けます。

米子ワシントンビルの周辺地図

オフィス探しで
こんなお悩み
ありませんか?
  • 物件を探す時間が無い
  • なかなか良い物件が
    見つからない
  • プロ目線で物件を
    提案してほしい

約60,000棟の
登録物件の中から
オフィス仲介のプロが
理想のオフィス探しを
徹底サポートいたします。

チェックした物件を