0120-38-8127

受付時間:8:30〜17:30(土日祝日は除く)

松江SUNビルの建物情報

お問い合わせ番号:009-06206
松江SUNビル 外観1
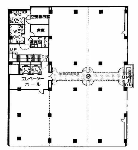
松江SUNビル 平面1
松江SUNビル 外観9
松江SUNビル 平面1
所在地
島根県松江市朝日町477-17
最寄駅
    松江駅(JR) 北口 3分
竣工
1988年 3月
規模
地上8階建
延床面積
1,909坪
基準階面積
180坪
駐車場設備
あり 収容台数72台
エレベーター
あり 2基
空調設備
個別方式
基準天井高
2,500mm
基準床荷重
300kg/㎡

松江SUNビルの公開募集区画

階数 面積 賃料(共益費含) 預託金 入居可能日 一括請求リスト
7階 25.63坪(84.728㎡) 未定未定/坪 未定未定/坪 即日
階数
7階
面積
25.63坪(84.728㎡)
賃料(共益費含)
未定 未定/坪
預託金
未定 未定/坪
入居可能日
即日
一括請求リスト

※募集フロアや面積、賃貸条件、設備等は状況により変更になる場合があります。
※(案)のフロアは分割または一括貸の面積例です。
※賃貸条件の上段は月額、下段は坪単価を表示します。
※賃料、共益費は別途消費税の対象となります。
※掲載写真や図面(パース含む)が現況と異なる場合は現況を優先します。
※ご成約時は規定の仲介手数料を申し受けます。

松江SUNビルの周辺地図

オフィス探しで
こんなお悩み
ありませんか?
  • 物件を探す時間が無い
  • なかなか良い物件が
    見つからない
  • プロ目線で物件を
    提案してほしい

約60,000棟の
登録物件の中から
オフィス仲介のプロが
理想のオフィス探しを
徹底サポートいたします。

チェックした物件を