0120-38-8127

受付時間:8:30〜17:30(土日祝日は除く)

新大阪アーズビルの建物情報

お問い合わせ番号:009-03810
新大阪アーズビル 外観1
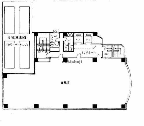
新大阪アーズビル 平面1
新大阪アーズビル 外観9
新大阪アーズビル 平面1
所在地
大阪市東淀川区西淡路1-1-32
最寄駅
    新大阪駅(JR) 東口(東中島方面) 2分
    新大阪駅(地下鉄御堂筋線) 5番口 8分
    崇禅寺駅(阪急京都本線) 11分
竣工
1992年 3月
規模
地上11階建
延床面積
1,252坪
基準階面積
71坪
駐車場設備
あり 収容台数51台
エレベーター
あり 2基
空調設備
個別方式
基準天井高
2,450mm

新大阪アーズビルの公開募集区画

階数 面積 賃料(共益費含) 預託金 入居可能日 一括請求リスト
1階 11.39坪(37.653㎡) 170,850円15,000円/坪 1,640,160円144,000円/坪 2026.05上旬
階数
1階
面積
11.39坪(37.653㎡)
賃料(共益費含)
170,850円 15,000円/坪
預託金
1,640,160円 144,000円/坪
入居可能日
2026.05上旬
一括請求リスト

※募集フロアや面積、賃貸条件、設備等は状況により変更になる場合があります。
※(案)のフロアは分割または一括貸の面積例です。
※賃貸条件の上段は月額、下段は坪単価を表示します。
※賃料、共益費は別途消費税の対象となります。
※掲載写真や図面(パース含む)が現況と異なる場合は現況を優先します。
※ご成約時は規定の仲介手数料を申し受けます。

新大阪アーズビルの周辺地図

オフィス探しで
こんなお悩み
ありませんか?
  • 物件を探す時間が無い
  • なかなか良い物件が
    見つからない
  • プロ目線で物件を
    提案してほしい

約60,000棟の
登録物件の中から
オフィス仲介のプロが
理想のオフィス探しを
徹底サポートいたします。

チェックした物件を