0120-534-011

受付時間:8:30〜17:30(土日祝日は除く)

ニュー東ビルの建物情報

お問い合わせ番号:009-02942
ニュー東ビル 外観1
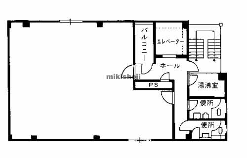
ニュー東ビル 平面1
ニュー東ビル 外観9
ニュー東ビル 平面1
所在地
大阪市中央区船越町2-3-1
最寄駅
    北浜駅(地下鉄堺筋線/京阪本線) 4番口 8分
    天満橋駅(地下鉄谷町線/京阪中之島線・本線) 4番口 8分
    堺筋本町駅(地下鉄堺筋線・中央線) 12番口 12分
竣工
1987年 2月
規模
地上10階建
延床面積
341坪
基準階面積
32坪
駐車場設備
なし
エレベーター
あり 1基
空調設備
個別方式

ニュー東ビルの公開募集区画

階数 面積 賃料(共益費含) 預託金 入居可能日 一括請求リスト
4階 26坪(85.951㎡) 208,000円8,000円/坪 624,000円24,000円/坪 2026.06上旬
6階 12坪(39.67㎡) 96,000円8,000円/坪 288,000円24,000円/坪 即日
階数
4階
面積
26坪(85.951㎡)
賃料(共益費含)
208,000円 8,000円/坪
預託金
624,000円 24,000円/坪
入居可能日
2026.06上旬
一括請求リスト
階数
6階
面積
12坪(39.67㎡)
賃料(共益費含)
96,000円 8,000円/坪
預託金
288,000円 24,000円/坪
入居可能日
即日
一括請求リスト

※募集フロアや面積、賃貸条件、設備等は状況により変更になる場合があります。
※(案)のフロアは分割または一括貸の面積例です。
※賃貸条件の上段は月額、下段は坪単価を表示します。
※賃料、共益費は別途消費税の対象となります。
※掲載写真や図面(パース含む)が現況と異なる場合は現況を優先します。
※ご成約時は規定の仲介手数料を申し受けます。

ニュー東ビルの周辺地図

オフィス探しで
こんなお悩み
ありませんか?
  • 物件を探す時間が無い
  • なかなか良い物件が
    見つからない
  • プロ目線で物件を
    提案してほしい

約60,000棟の
登録物件の中から
オフィス仲介のプロが
理想のオフィス探しを
徹底サポートいたします。

チェックした物件を