0120-38-8127

受付時間:8:30〜17:30(土日祝日は除く)

四ツ橋KFビルの建物情報

お問い合わせ番号:009-00684
四ツ橋KFビル 外観1
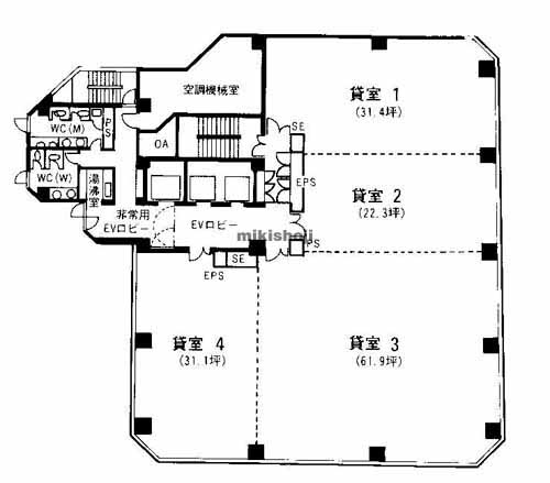
四ツ橋KFビル 平面1
四ツ橋KFビル 外観9
四ツ橋KFビル 平面1
所在地
大阪市西区新町1-13-3
最寄駅
    本町駅(地下鉄御堂筋線・四つ橋線・中央線) 22番口 4分
    四ツ橋駅(地下鉄四つ橋線) 2番口 6分
竣工
1989年 1月(リニューアル:2013年 1月)
規模
地上12階/地下1階建
延床面積
2,627坪
基準階面積
146坪
駐車場設備
あり 収容台数42台
エレベーター
あり 3基
空調設備
個別・セントラル方式
基準天井高
2,550mm
基準床荷重
300kg/㎡(OA)

四ツ橋KFビルの公開募集区画

階数 面積 賃料(共益費含) 預託金 入居可能日 一括請求リスト
3階 30.87坪(102.05㎡) 未定未定/坪 未定未定/坪 2026.02上旬
8階 93坪(307.439㎡) 未定未定/坪 未定未定/坪 2026.05上旬
9階 31.1坪(102.81㎡) 未定未定/坪 未定未定/坪 2026.06上旬
階数
3階
面積
30.87坪(102.05㎡)
賃料(共益費含)
未定 未定/坪
預託金
未定 未定/坪
入居可能日
2026.02上旬
一括請求リスト
階数
8階
面積
93坪(307.439㎡)
賃料(共益費含)
未定 未定/坪
預託金
未定 未定/坪
入居可能日
2026.05上旬
一括請求リスト
階数
9階
面積
31.1坪(102.81㎡)
賃料(共益費含)
未定 未定/坪
預託金
未定 未定/坪
入居可能日
2026.06上旬
一括請求リスト

※募集フロアや面積、賃貸条件、設備等は状況により変更になる場合があります。
※(案)のフロアは分割または一括貸の面積例です。
※賃貸条件の上段は月額、下段は坪単価を表示します。
※賃料、共益費は別途消費税の対象となります。
※掲載写真や図面(パース含む)が現況と異なる場合は現況を優先します。
※ご成約時は規定の仲介手数料を申し受けます。

四ツ橋KFビルの周辺地図

オフィス探しで
こんなお悩み
ありませんか?
  • 物件を探す時間が無い
  • なかなか良い物件が
    見つからない
  • プロ目線で物件を
    提案してほしい

約60,000棟の
登録物件の中から
オフィス仲介のプロが
理想のオフィス探しを
徹底サポートいたします。

チェックした物件を