0120-534-011

受付時間:8:30〜17:30(土日祝日は除く)

第一協業ビルの建物情報

お問い合わせ番号:009-00636
第一協業ビル 外観1
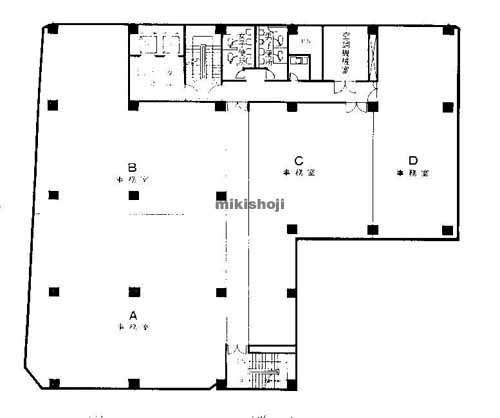
第一協業ビル 平面1
第一協業ビル 外観9
第一協業ビル 平面1
所在地
大阪市西区阿波座1-15-15
最寄駅
    本町駅(地下鉄御堂筋線・四つ橋線・中央線) 23番口 5分
    阿波座駅(地下鉄千日前線・中央線) 2番口 7分
竣工
1974年12月(リニューアル:2022年11月)
規模
地上9階/地下1階建
延床面積
2,605坪
基準階面積
208坪
駐車場設備
なし
エレベーター
あり 2基
空調設備
個別方式
基準天井高
2,320mm

第一協業ビルの公開募集区画

階数 面積 賃料(共益費含) 預託金 入居可能日 一括請求リスト
1階 17坪(56.199㎡) 178,500円10,500円/坪 136,000円8,000円/坪 即日
B1-1階 150坪(495.87㎡) 900,000円6,000円/坪 900,000円6,000円/坪 即日
階数
1階
面積
17坪(56.199㎡)
賃料(共益費含)
178,500円 10,500円/坪
預託金
136,000円 8,000円/坪
入居可能日
即日
一括請求リスト
階数
B1-1階
面積
150坪(495.87㎡)
賃料(共益費含)
900,000円 6,000円/坪
預託金
900,000円 6,000円/坪
入居可能日
即日
一括請求リスト

※募集フロアや面積、賃貸条件、設備等は状況により変更になる場合があります。
※(案)のフロアは分割または一括貸の面積例です。
※賃貸条件の上段は月額、下段は坪単価を表示します。
※賃料、共益費は別途消費税の対象となります。
※掲載写真や図面(パース含む)が現況と異なる場合は現況を優先します。
※ご成約時は規定の仲介手数料を申し受けます。

第一協業ビルの周辺地図

オフィス探しで
こんなお悩み
ありませんか?
  • 物件を探す時間が無い
  • なかなか良い物件が
    見つからない
  • プロ目線で物件を
    提案してほしい

約60,000棟の
登録物件の中から
オフィス仲介のプロが
理想のオフィス探しを
徹底サポートいたします。

チェックした物件を