0120-534-011

受付時間:8:30〜17:30(土日祝日は除く)

URBAN TERRACE ODAWARAの建物情報

お問い合わせ番号:002-40665
URBAN TERRACE ODAWARA 外観1
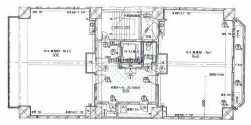
URBAN TERRACE ODAWARA 平面1
URBAN TERRACE ODAWARA 外観9
URBAN TERRACE ODAWARA 平面1
所在地
仙台市宮城野区小田原1-8-28
最寄駅
    仙台駅 ( JR ) 出入口1 14分
    榴ヶ岡駅 ( JR ) 1番口 11分
    宮城野通駅 ( 仙台市営東西線 ) 北1口 14分
竣工
2024年 2月
規模
地上10階建
延床面積
0坪
基準階面積
44坪
駐車場設備
あり
エレベーター
あり 1基

URBAN TERRACE ODAWARAの公開募集区画

階数 面積 賃料(共益費含) 預託金 入居可能日 一括請求リスト
2階 21.2坪(70.083㎡) 202,728円9,563円/坪 385,456円18,182円/坪 即日
階数
2階
面積
21.2坪(70.083㎡)
賃料(共益費含)
202,728円 9,563円/坪
預託金
385,456円 18,182円/坪
入居可能日
即日
一括請求リスト

※募集フロアや面積、賃貸条件、設備等は状況により変更になる場合があります。
※(案)のフロアは分割または一括貸の面積例です。
※賃貸条件の上段は月額、下段は坪単価を表示します。
※賃料、共益費は別途消費税の対象となります。
※掲載写真や図面(パース含む)が現況と異なる場合は現況を優先します。
※ご成約時は規定の仲介手数料を申し受けます。

URBAN TERRACE ODAWARAの周辺地図

URBAN TERRACE ODAWARAのビル概要

URBAN TERRACE ODAWARAは、仙台市宮城野区小田原に2024年2月に竣工した最新の賃貸オフィスビルです。JR「仙台駅」から徒歩14分、JR「榴ヶ岡駅」から徒歩11分のアプローチが可能です。地上10階建て、基準階面積は約44坪の規模を有しており、現代の働き方に合わせた清潔感溢れる執務空間を提供します。最新の設備仕様と高い省エネ性能を備え、企業の新規拠点開設や先進的な事務所移転ニーズに寄与する環境です。

オフィス探しで
こんなお悩み
ありませんか?
  • 物件を探す時間が無い
  • なかなか良い物件が
    見つからない
  • プロ目線で物件を
    提案してほしい

約60,000棟の
登録物件の中から
オフィス仲介のプロが
理想のオフィス探しを
徹底サポートいたします。

チェックした物件を