0120-38-8127

受付時間:8:30〜17:30(土日祝日は除く)

新宿JECビルの建物情報

お問い合わせ番号:021-03275
新宿JECビル 外観1
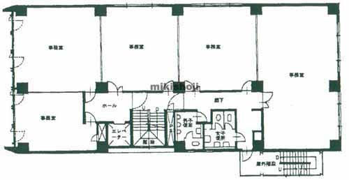
新宿JECビル 平面1
新宿JECビル 外観9
新宿JECビル 平面1
所在地
新宿区西新宿7-22-43
最寄駅
    新宿西口駅(都営大江戸線) D5口 5分
    西新宿駅(東京メトロ丸ノ内線) 1番口 6分
    大久保駅(JR) 南口 9分
竣工
1978年 1月
規模
地上7階/地下1階建
延床面積
742坪
基準階面積
86坪
駐車場設備
あり
エレベーター
あり 1基
空調設備
個別方式
基準天井高
2,400mm

新宿JECビルの公開募集区画

階数 面積 賃料(共益費含) 預託金 入居可能日 一括請求リスト
4階 87.5坪(289.258㎡) 1,400,000円16,000円/坪 16,800,000円192,000円/坪 2026.04上旬
階数
4階
面積
87.5坪(289.258㎡)
賃料(共益費含)
1,400,000円 16,000円/坪
預託金
16,800,000円 192,000円/坪
入居可能日
2026.04上旬
一括請求リスト

※募集フロアや面積、賃貸条件、設備等は状況により変更になる場合があります。
※(案)のフロアは分割または一括貸の面積例です。
※賃貸条件の上段は月額、下段は坪単価を表示します。
※賃料、共益費は別途消費税の対象となります。
※掲載写真や図面(パース含む)が現況と異なる場合は現況を優先します。
※ご成約時は規定の仲介手数料を申し受けます。

新宿JECビルの周辺地図

オフィス探しで
こんなお悩み
ありませんか?
  • 物件を探す時間が無い
  • なかなか良い物件が
    見つからない
  • プロ目線で物件を
    提案してほしい

約60,000棟の
登録物件の中から
オフィス仲介のプロが
理想のオフィス探しを
徹底サポートいたします。

チェックした物件を