0120-534-011

受付時間:8:30〜17:30(土日祝日は除く)

イーグレひめじの建物情報

お問い合わせ番号:009-45273
イーグレひめじ 外観1
イーグレひめじ 平面1
イーグレひめじ 外観9
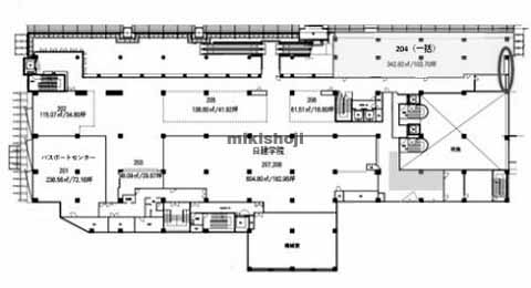
イーグレひめじ 平面1
所在地
兵庫県姫路市本町68-290
最寄駅
    山陽姫路駅 ( 山陽電鉄本線 ) 11分
    姫路駅 ( JR ) 東口 13分
竣工
2001年 4月
規模
地上6階建
延床面積
0坪
基準階面積
0坪
駐車場設備
なし
エレベーター
あり 2基
空調設備
個別方式

イーグレひめじの公開募集区画

階数 面積 賃料(共益費含) 預託金 入居可能日 一括請求リスト
2階 103.7坪(342.811㎡) 1,244,400円12,000円/坪 7,466,400円72,000円/坪 入居日相談
2階(案) 26.69坪(88.232㎡) 346,970円13,000円/坪 2,081,820円78,000円/坪 入居日相談
2階(案) 25.77坪(85.19㎡) 335,010円13,000円/坪 2,010,060円78,000円/坪 入居日相談
2階(案) 25.77坪(85.19㎡) 335,010円13,000円/坪 2,010,060円78,000円/坪 入居日相談
2階(案) 25.44坪(84.1㎡) 330,720円13,000円/坪 1,984,320円78,000円/坪 入居日相談
階数
2階
面積
103.7坪(342.811㎡)
賃料(共益費含)
1,244,400円 12,000円/坪
預託金
7,466,400円 72,000円/坪
入居可能日
入居日相談
一括請求リスト
階数
2階(案)
面積
26.69坪(88.232㎡)
賃料(共益費含)
346,970円 13,000円/坪
預託金
2,081,820円 78,000円/坪
入居可能日
入居日相談
一括請求リスト
階数
2階(案)
面積
25.77坪(85.19㎡)
賃料(共益費含)
335,010円 13,000円/坪
預託金
2,010,060円 78,000円/坪
入居可能日
入居日相談
一括請求リスト
階数
2階(案)
面積
25.77坪(85.19㎡)
賃料(共益費含)
335,010円 13,000円/坪
預託金
2,010,060円 78,000円/坪
入居可能日
入居日相談
一括請求リスト
階数
2階(案)
面積
25.44坪(84.1㎡)
賃料(共益費含)
330,720円 13,000円/坪
預託金
1,984,320円 78,000円/坪
入居可能日
入居日相談
一括請求リスト

※募集フロアや面積、賃貸条件、設備等は状況により変更になる場合があります。
※(案)のフロアは分割または一括貸の面積例です。
※賃貸条件の上段は月額、下段は坪単価を表示します。
※賃料、共益費は別途消費税の対象となります。
※掲載写真や図面(パース含む)が現況と異なる場合は現況を優先します。
※ご成約時は規定の仲介手数料を申し受けます。

イーグレひめじの周辺地図

オフィス探しで
こんなお悩み
ありませんか?
  • 物件を探す時間が無い
  • なかなか良い物件が
    見つからない
  • プロ目線で物件を
    提案してほしい

約60,000棟の
登録物件の中から
オフィス仲介のプロが
理想のオフィス探しを
徹底サポートいたします。

チェックした物件を