0120-38-8127

受付時間:8:30〜17:30(土日祝日は除く)

資生堂神戸ビルの建物情報

お問い合わせ番号:009-08244
資生堂神戸ビル 外観1
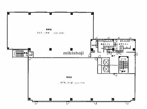
資生堂神戸ビル 平面1
資生堂神戸ビル 外観9
資生堂神戸ビル 平面1
所在地
神戸市兵庫区水木通4-1-6
最寄駅
    新開地駅(神戸高速鉄道東西線・南北線) 1号出入口 6分
    大開駅(神戸高速鉄道東西線) 出入口2 6分
    湊川駅(神戸高速鉄道南北線/神戸電鉄有馬線) 西出口1 10分
竣工
1998年 4月
規模
地上6階/地下1階建
延床面積
1,742坪
基準階面積
220坪
駐車場設備
あり 収容台数62台
エレベーター
あり 2基
空調設備
個別方式
基準天井高
2,600mm

資生堂神戸ビルの公開募集区画

階数 面積 賃料(共益費含) 預託金 入居可能日 一括請求リスト
5階 54.51坪(180.199㎡) 517,845円9,500円/坪 3,543,150円65,000円/坪 即日
5階(案) 28.07坪(92.794㎡) 266,665円9,500円/坪 1,824,550円65,000円/坪 入居日相談
5階(案) 26.44坪(87.405㎡) 251,180円9,500円/坪 1,718,600円65,000円/坪 入居日相談
階数
5階
面積
54.51坪(180.199㎡)
賃料(共益費含)
517,845円 9,500円/坪
預託金
3,543,150円 65,000円/坪
入居可能日
即日
一括請求リスト
階数
5階(案)
面積
28.07坪(92.794㎡)
賃料(共益費含)
266,665円 9,500円/坪
預託金
1,824,550円 65,000円/坪
入居可能日
入居日相談
一括請求リスト
階数
5階(案)
面積
26.44坪(87.405㎡)
賃料(共益費含)
251,180円 9,500円/坪
預託金
1,718,600円 65,000円/坪
入居可能日
入居日相談
一括請求リスト

※募集フロアや面積、賃貸条件、設備等は状況により変更になる場合があります。
※(案)のフロアは分割または一括貸の面積例です。
※賃貸条件の上段は月額、下段は坪単価を表示します。
※賃料、共益費は別途消費税の対象となります。
※掲載写真や図面(パース含む)が現況と異なる場合は現況を優先します。
※ご成約時は規定の仲介手数料を申し受けます。

資生堂神戸ビルの周辺地図

オフィス探しで
こんなお悩み
ありませんか?
  • 物件を探す時間が無い
  • なかなか良い物件が
    見つからない
  • プロ目線で物件を
    提案してほしい

約60,000棟の
登録物件の中から
オフィス仲介のプロが
理想のオフィス探しを
徹底サポートいたします。

チェックした物件を