0120-38-8127

受付時間:8:30〜17:30(土日祝日は除く)

広小路イニシアビル(旧:サーラ広小路ビル)の建物情報

お問い合わせ番号:008-08106
広小路イニシアビル(旧:サーラ広小路ビル) 外観1
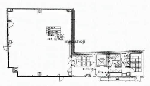
広小路イニシアビル(旧:サーラ広小路ビル) 平面1
広小路イニシアビル(旧:サーラ広小路ビル) 外観9
広小路イニシアビル(旧:サーラ広小路ビル) 平面1
所在地
豊橋市広小路3-91
最寄駅
    駅前大通駅(豊橋鉄道東田本線) 3分
    豊橋駅(名鉄名古屋本線) 東口 7分
    豊橋駅(JR) 東口 7分
竣工
1990年11月
規模
地上7階建
延床面積
465坪
基準階面積
47坪
駐車場設備
なし
エレベーター
あり 1基
空調設備
個別方式
基準天井高
2,600mm

広小路イニシアビル(旧:サーラ広小路ビル)の公開募集区画

階数 面積 賃料(共益費含) 預託金 入居可能日 一括請求リスト
1階 47.04坪(155.505㎡) 457,008円9,716円/坪 3,300,000円70,154円/坪 即日
2階 47.34坪(156.497㎡) 457,818円9,671円/坪 3,300,000円69,709円/坪 即日
階数
1階
面積
47.04坪(155.505㎡)
賃料(共益費含)
457,008円 9,716円/坪
預託金
3,300,000円 70,154円/坪
入居可能日
即日
一括請求リスト
階数
2階
面積
47.34坪(156.497㎡)
賃料(共益費含)
457,818円 9,671円/坪
預託金
3,300,000円 69,709円/坪
入居可能日
即日
一括請求リスト

※募集フロアや面積、賃貸条件、設備等は状況により変更になる場合があります。
※(案)のフロアは分割または一括貸の面積例です。
※賃貸条件の上段は月額、下段は坪単価を表示します。
※賃料、共益費は別途消費税の対象となります。
※掲載写真や図面(パース含む)が現況と異なる場合は現況を優先します。
※ご成約時は規定の仲介手数料を申し受けます。

広小路イニシアビル(旧:サーラ広小路ビル)の周辺地図

オフィス探しで
こんなお悩み
ありませんか?
  • 物件を探す時間が無い
  • なかなか良い物件が
    見つからない
  • プロ目線で物件を
    提案してほしい

約60,000棟の
登録物件の中から
オフィス仲介のプロが
理想のオフィス探しを
徹底サポートいたします。

チェックした物件を