0120-534-011

受付時間:8:30〜17:30(土日祝日は除く)

大樹生命青森ビルの建物情報

お問い合わせ番号:002-10219
大樹生命青森ビル 外観1
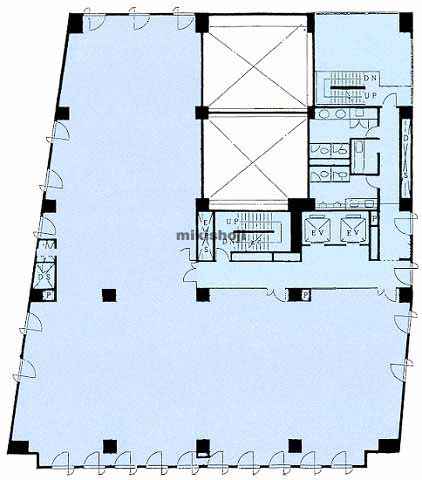
大樹生命青森ビル 平面1
大樹生命青森ビル 外観9
大樹生命青森ビル 平面1
所在地
青森市本町1-4-17
最寄駅
    青森駅(JR) 東口 20分
    青森駅(青い森鉄道線) 東口 20分
竣工
1997年 2月
規模
地上8階/地下1階建
延床面積
1,857坪
基準階面積
140坪
駐車場設備
あり 収容台数64台
エレベーター
あり 2基
空調設備
個別方式
基準天井高
2,550mm
基準床荷重
300kg/㎡

大樹生命青森ビルの公開募集区画

階数 面積 賃料(共益費含) 預託金 入居可能日 一括請求リスト
3階 24.95坪(82.48㎡) 相談相談/坪 相談相談/坪 即日
階数
3階
面積
24.95坪(82.48㎡)
賃料(共益費含)
相談 相談/坪
預託金
相談 相談/坪
入居可能日
即日
一括請求リスト

※募集フロアや面積、賃貸条件、設備等は状況により変更になる場合があります。
※(案)のフロアは分割または一括貸の面積例です。
※賃貸条件の上段は月額、下段は坪単価を表示します。
※賃料、共益費は別途消費税の対象となります。
※掲載写真や図面(パース含む)が現況と異なる場合は現況を優先します。
※ご成約時は規定の仲介手数料を申し受けます。

大樹生命青森ビルの周辺地図

大樹生命青森ビルのビル概要

大樹生命青森ビルは、青森市本町にそびえる地上8階・地下1階建てのハイグレードなオフィスビルです。1997年2月に竣工し、青森市の中心業務地区である本町エリアの中核拠点として機能します。延床面積は約1,857坪、基準階面積は約140坪の広範なフロアを有しています。事務所移転に際して、新耐震基準適合の安全性と洗練された建物仕様、そして整形なフロア形状による効率的なレイアウト設計が、企業の信頼性向上と業務効率化に寄与する仕様です。

オフィス探しで
こんなお悩み
ありませんか?
  • 物件を探す時間が無い
  • なかなか良い物件が
    見つからない
  • プロ目線で物件を
    提案してほしい

約60,000棟の
登録物件の中から
オフィス仲介のプロが
理想のオフィス探しを
徹底サポートいたします。

チェックした物件を