0120-534-011

受付時間:8:30〜17:30(土日祝日は除く)

AIG北見ビルの建物情報

お問い合わせ番号:001-10959
AIG北見ビル 外観1
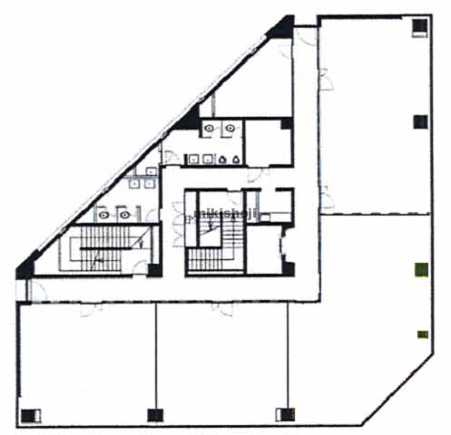
AIG北見ビル 平面1
AIG北見ビル 外観9
AIG北見ビル 平面1
所在地
北見市北4条東3-1-1
最寄駅
    北見駅(JR) 8分
竣工
1989年12月
規模
地上5階建
延床面積
767坪
基準階面積
84坪
駐車場設備
あり 収容台数24台
エレベーター
あり 1基
空調設備
個別方式
基準天井高
2,600mm

AIG北見ビルの公開募集区画

階数 面積 賃料(共益費含) 預託金 入居可能日 一括請求リスト
4階 17.1坪(56.529㎡) 153,900円9,000円/坪 1,231,200円72,000円/坪 入居日相談
階数
4階
面積
17.1坪(56.529㎡)
賃料(共益費含)
153,900円 9,000円/坪
預託金
1,231,200円 72,000円/坪
入居可能日
入居日相談
一括請求リスト

※募集フロアや面積、賃貸条件、設備等は状況により変更になる場合があります。
※(案)のフロアは分割または一括貸の面積例です。
※賃貸条件の上段は月額、下段は坪単価を表示します。
※賃料、共益費は別途消費税の対象となります。
※掲載写真や図面(パース含む)が現況と異なる場合は現況を優先します。
※ご成約時は規定の仲介手数料を申し受けます。

AIG北見ビルの周辺地図

AIG北見ビルのビル概要

AIG北見ビルは、北見市北4条東3丁目に位置する1989年12月竣工の地上5階建て賃貸オフィスビルです。延床面積は約767平米、基準階面積は約84平米の構成となっています。JR北見駅から徒歩8分という利便性を備えており、北見市中心部のビジネス・行政エリアにおける拠点として機能します。事務所移転において、安定したビル管理と実務に適した床面積を確保できる仕様です。テナント募集物件として、北見エリアでの機動的な事業展開を支える物理的環境が整っています。

オフィス探しで
こんなお悩み
ありませんか?
  • 物件を探す時間が無い
  • なかなか良い物件が
    見つからない
  • プロ目線で物件を
    提案してほしい

約60,000棟の
登録物件の中から
オフィス仲介のプロが
理想のオフィス探しを
徹底サポートいたします。

チェックした物件を